Back To Search
This property is not currently available. It may be sold or temporarily removed from the market.
Denewood, Killingworth Village, NE12
£2,000 pcm
Property Features
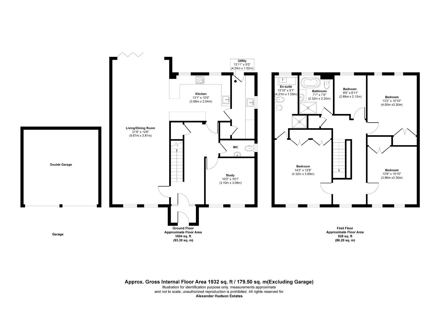
- Four bedroom, detached family home with attached garage and large driveway
- Bright and modern with a large, lawned garden to the rear
- Main bedroom benefits from a whirlpool bath in the attached ensuite
- Idyllic setting surrounded by woodland walks, close-by to a range of amenities
- Available from 1st January 2022
Property Summary
Alexander Hudson Estates is excited to introduce to the rental market this immaculately presented, four-bedroom, detached family home located in the picturesque Killingworth Village, surrounded by woodland walks and wildlife.
With open-plan living throughout the ground floor, this property briefly comprises of an entrance hallway, WC, living room, study and open plan kitchen, dining and seating area. On the first floor lies a family bathroom and four bedrooms with built-in wardrobes and an ensuite. Situated at the front is a lawned area and large driveway leading up to an attached garage providing ample off-street parking. At the rear is a spacious, lawned garden fully encompassed by a tall wooden fence overlooked by mature, leafy trees.
Close-by to Ofsted rated ‘Outstanding’ schooling, Killingworth Shopping Centre, White Swan Centre and The Lakeside Centre. Both Killingworth Boating Lake with its bridleways and Lakeside Park offer idyllic settings, perfect for family walks or exercise. Excellent transport links provide easy access to Newcastle City Centre, Quorum, Balliol and Gosforth Business Parks; whilst the A19 is only a short drive away for trips further afield.
With open-plan living throughout the ground floor, this property briefly comprises of an entrance hallway, WC, living room, study and open plan kitchen, dining and seating area. On the first floor lies a family bathroom and four bedrooms with built-in wardrobes and an ensuite. Situated at the front is a lawned area and large driveway leading up to an attached garage providing ample off-street parking. At the rear is a spacious, lawned garden fully encompassed by a tall wooden fence overlooked by mature, leafy trees.
Close-by to Ofsted rated ‘Outstanding’ schooling, Killingworth Shopping Centre, White Swan Centre and The Lakeside Centre. Both Killingworth Boating Lake with its bridleways and Lakeside Park offer idyllic settings, perfect for family walks or exercise. Excellent transport links provide easy access to Newcastle City Centre, Quorum, Balliol and Gosforth Business Parks; whilst the A19 is only a short drive away for trips further afield.

