Property Summary
Alexander Hudson Estates are delighted to present this one-bedroom terraced property situated within Forest Gate, Palmersville, a popular residential estate close-by to nearby transport links and amenities.
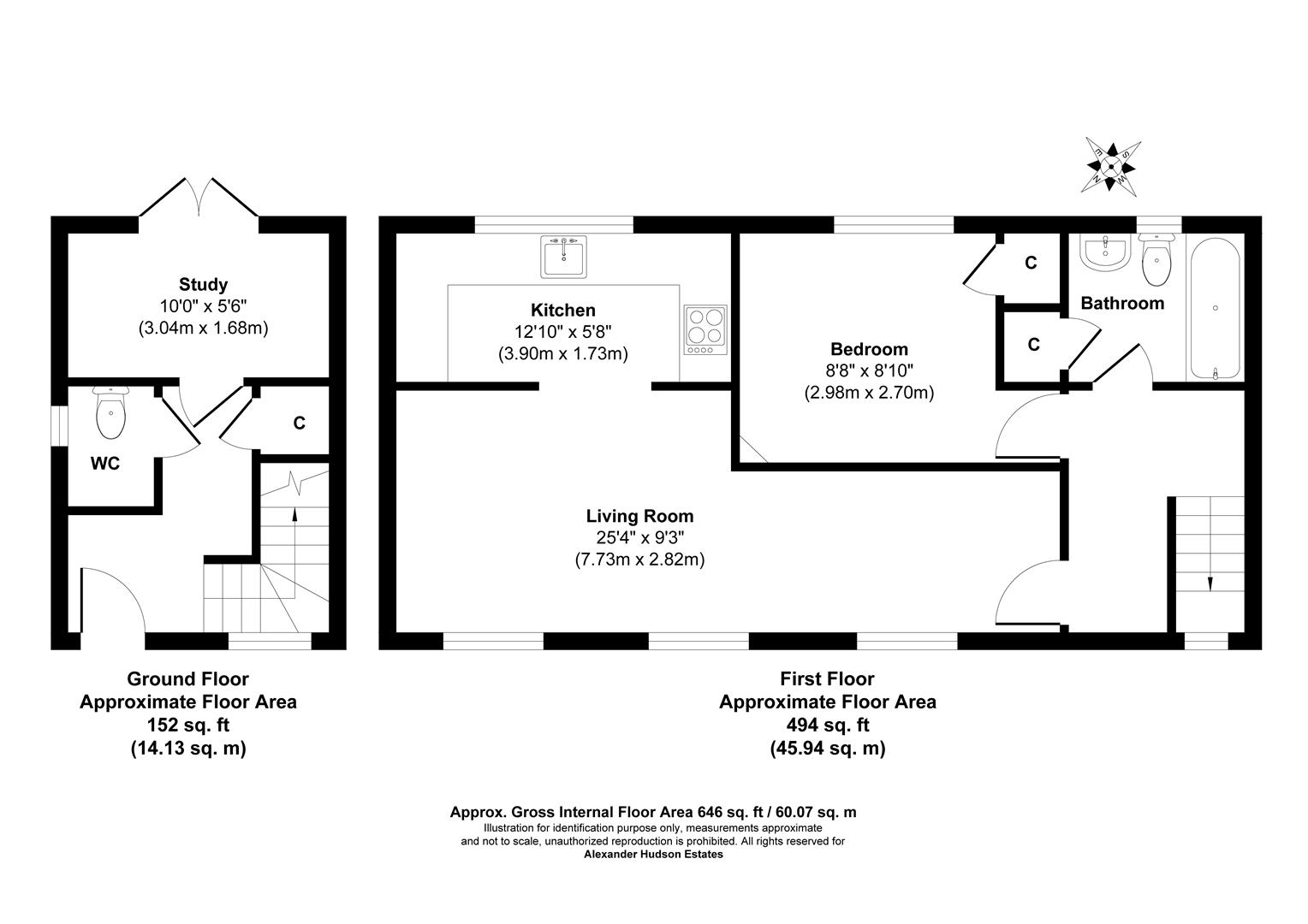
The property briefly comprises an entrance hall, a convenient ground floor WC and a well-proportioned office with patio doors opening directly onto the rear garden. To the first floor is a bright and airy lounge/dining room offering a comfortable living space, a stylish kitchen and a generously sized bedroom with built-in storage cupboard, and a modern three-piece bathroom. Externally, the property benefits from a private rear garden featuring a lawn and patio area, ideal for outdoor seating, along with an allocated parking space to the rear of the house providing off-street parking.
Palmersville is a well-connected suburb in North Tyneside with historic ties to the area’s mining past. It offers a mix of housing, local shops, and cafés, with a friendly atmosphere for families and professionals. Palmersville Metro Station provides direct links to Newcastle city centre and the coast, while the A19 and A1 ensure easy road travel. Larger shopping and leisure facilities are nearby in Killingworth, Longbenton, and Benton. Families are well served by nurseries, primary schools, and secondary schools, making Palmersville a practical and popular choice for modern living.
The property briefly comprises an entrance hall, a convenient ground floor WC and a well-proportioned office with patio doors opening directly onto the rear garden. To the first floor is a bright and airy lounge/dining room offering a comfortable living space, a stylish kitchen and a generously sized bedroom with built-in storage cupboard, and a modern three-piece bathroom. Externally, the property benefits from a private rear garden featuring a lawn and patio area, ideal for outdoor seating, along with an allocated parking space to the rear of the house providing off-street parking.
Palmersville is a well-connected suburb in North Tyneside with historic ties to the area’s mining past. It offers a mix of housing, local shops, and cafés, with a friendly atmosphere for families and professionals. Palmersville Metro Station provides direct links to Newcastle city centre and the coast, while the A19 and A1 ensure easy road travel. Larger shopping and leisure facilities are nearby in Killingworth, Longbenton, and Benton. Families are well served by nurseries, primary schools, and secondary schools, making Palmersville a practical and popular choice for modern living.
Send to a friend
Shortlisted Properties
Explore Other Properties
Explore Other Properties
Kind Words From Our Clients
Kind Words From Our Clients



