Back To Search
This property is not currently available. It may be sold or temporarily removed from the market.
Sold STC
Garth Twentytwo, Killingworth, NE12
£125,000
Offers in the region of
Property Features
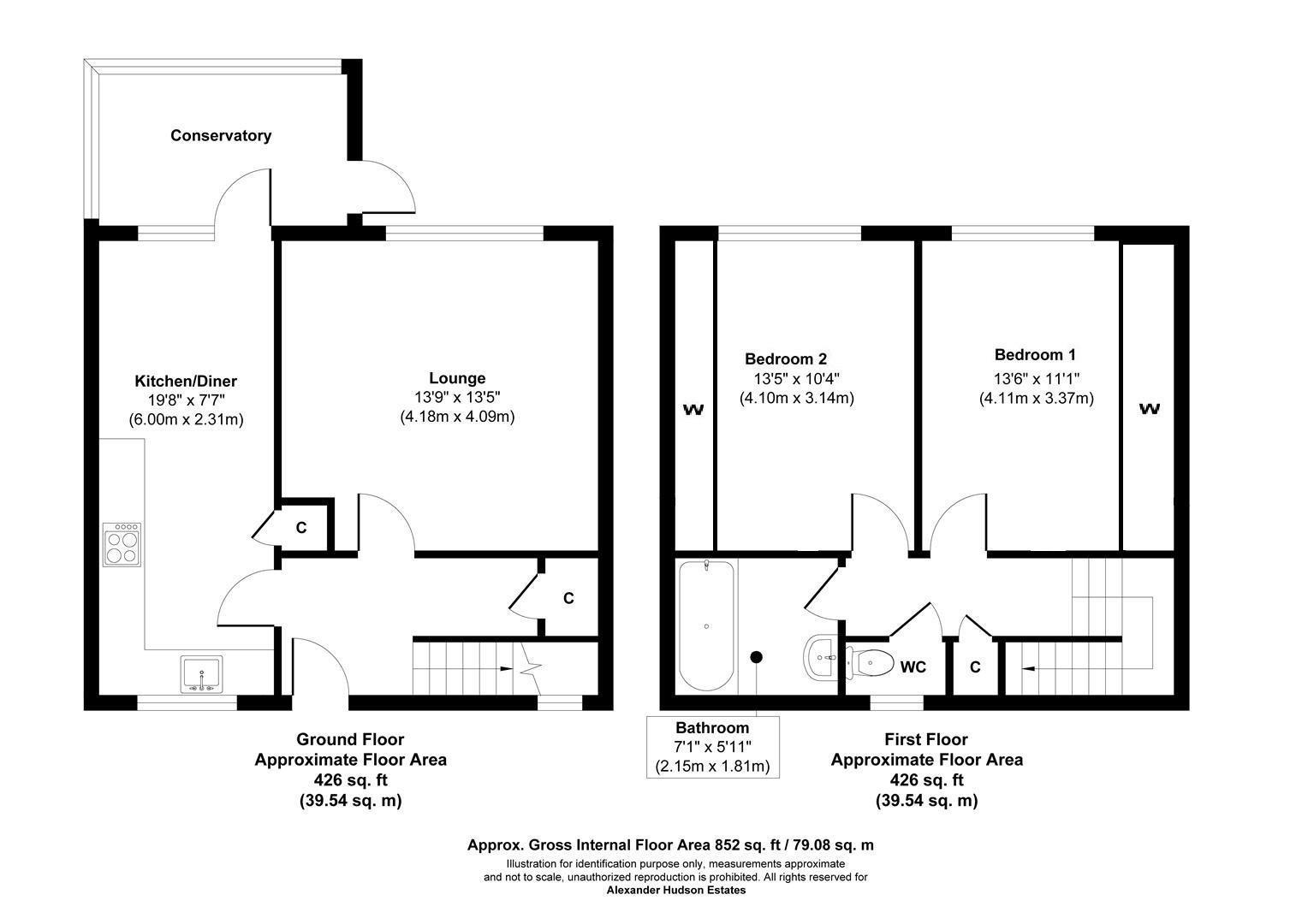
- Two bedroom, end terrace family home.
- Immaculately presented and maintained throughout.
- Low maintince, sunny rear garden with raised decking.
- Within walking distance to local Schools, amenities and transport links.
Property Summary
Alexander Hudson Estates introduces to market this immaculately presented two-bedroom, end-terrace family home in the popular residential area of Killingworth, NE12.
Bright and spacious throughout, the property briefly comprises of entrance hallway, living room and a modern kitchen/ dining room. Two bedrooms and a family bathroom with separate WC occupy the first floor. Externally, the property benefits from a sunny low maintenance rear garden with a raised decking seating area.
The property is ideally located and within easy reach of local primary and secondary schools and sits close to a local bus route, with links to Newcastle City Centre, Quorum, Balliol and Gosforth Business Parks; whilst the A19 is only a short drive away for trips further afield. The Killingworth Shopping Centre, White Swan Centre and The Lakeside Centre are all close-by and within walking distance. Both Killingworth Boating Lake with its bridleways and Lakeside Park offer idyllic settings, perfect for family walks and exercise.
Bright and spacious throughout, the property briefly comprises of entrance hallway, living room and a modern kitchen/ dining room. Two bedrooms and a family bathroom with separate WC occupy the first floor. Externally, the property benefits from a sunny low maintenance rear garden with a raised decking seating area.
The property is ideally located and within easy reach of local primary and secondary schools and sits close to a local bus route, with links to Newcastle City Centre, Quorum, Balliol and Gosforth Business Parks; whilst the A19 is only a short drive away for trips further afield. The Killingworth Shopping Centre, White Swan Centre and The Lakeside Centre are all close-by and within walking distance. Both Killingworth Boating Lake with its bridleways and Lakeside Park offer idyllic settings, perfect for family walks and exercise.





























